Ciesielstwo

Kontynuacja dyskusji w ramach komentarzy do artykułu "Rekonstrukcje"
maciej
Posty: 309
Rejestracja: 12 lut 2009, 15:15

Ciesielstwo

Post autor: maciej »

Ciesielstwo oczywiście będzie się przewijało również przy okazji innych rekonstrukcji (przede wszystkim trebusza) ale w tym roku zaczynamy budową szkieletowej konstrukcji warsztatu garncarskiego, o czym wspomnieliśmy już w nowinach http://www.templariusze.org/tmplszlk.php z 11 maja 2010. Fotografie z prac można obejrzeć tutaj: http://www.templariusze.org/galeria_pod ... 185#podkat
Kluczową postacią dla zachowania jakości rekonstrukcyjnej jest Brat Joerg - cieśla restaurator zabytków. Sami nie mamy jeszcze doświadczenia w budownictwie ryglowym.
Oto projekt Brata Joerga:
Obrazek Obrazek

Pozdrawiam
Maciej
maciej
Posty: 309
Rejestracja: 12 lut 2009, 15:15

Re: Ciesielstwo

Post autor: maciej »

Konstrukcje szkieletowe wykształciły najprawdopodobniej w północnych Niemczech i północnej Szwajcarii w okresie IX-XI wieku. Prawdopodobnie była to ewolucja z budowli słupowych, a pośrednią formą znaną z ww. terenów były konstrukcje słupowe z ryglami przyciesiowymi. Rygle - to te poziome belki pomiędzy słupami. Aby zdefiniować nazewnictwo - spójrzmy na ilustrację (pochodzącą z podręcznika "Projektowanie architektoniczne i budownictwo regionalne" autorstwa Wandy Bogusz, WSziP, Warszawa 1996):
Obrazek Obrazek
Przy okazji z tego samego źródła - sposób wypełniania ścian. "Plecionki" były później oblepiane gliną.
Przykład wczesnej konstrukcji szkieletowej (źródło: Jerzy Piekalski, Początki budynków o konstrukcji szkieletowej na terenie Środkowej Europy", w: Archeologia Historica Polona t.3, Toruń 1996), a na drugiej ilustracji - sposób łączenia słupów z podwaliną:
Obrazek Obrazek
Średniowieczni cieśle przy pracy:
Obrazek

Istnieje również hipoteza o wpływie rzymskiego budownictwa drewnianego na powstanie konstrukcji szkieletowych.

Pozdrawiam
Maciej
maciej
Posty: 309
Rejestracja: 12 lut 2009, 15:15

Re: Ciesielstwo

Post autor: maciej »

Przejście od teorii do praktyki aż tak źle nie wygląda :-) - co widać w naszej galerii:
http://www.templariusze.org/galeria_pod ... 185#podkat
Może nie wszystko idzie idealnie ale mimo nieobecności mistrza Brata Joerga na razie sobie radzimy. Trzeba tylko dopracować produkcję drewnianych gwoździ bo na razie to jest dość męczące. Ale na przykład prawie średniowieczna dociągarka z taśmy sprawdziła się w boju. Szkoda, że jeden z oryginalnych "poniemieckich" świdrów nie wytrzymał.
Jutro dojedzie Joerg i również postaram się zdać relację.

Pozdrawiam
Maciej
maciej
Posty: 309
Rejestracja: 12 lut 2009, 15:15

Re: Ciesielstwo

Post autor: maciej »

Brat Joerg przekazał nam sporo praktycznej wiedzy dotyczącej wydawałoby się prostych rzeczy - na przykład konstrukcji gniazd w połączeniach podwaliny ze słupem i słupa z oczepem. Dodatkowo udzieliła się nam jego energia, co widać na zdjęciach w galerii :).
Po ostatnich zajęciach do złożenia drugiej ściany pozostało nam dopasowanie słupów i wykonanie zastrzałów. Gotowe są narożne słupy oraz przedni i tylny oczep. Za trzy tygodnie następna duża sesja wspólnej pracy a w międzyczasie postaramy się z Bratem Mirkiem (i może z Regisem jeśli uda się przyjazd) zrobić brakujące elementy ścian.
Przydałby się wyjazd studyjny do zaprzyjaźnionego Torgelow - a na razie dla przypomnienia zdjęcia z turnieju w Torgelow z obiektami w skansenie średniowiecznym i w Ukranenland. Zwróćcie uwagę na piec garncarski - podobno wykonany na podstawie prawdziwego średniowiecznego pieca, znajdującego się dziś w jednym z berlińskich muzeów.
http://www.templariusze.org/galeria_pod ... 188#podkat

Pozdrawiam
Maciej
regis
Posty: 12
Rejestracja: 15 maja 2009, 00:21

Re: Ciesielstwo

Post autor: regis »

Ściany wypełniamy naszą tradycyjną cegła czy jakąś narzutką?
Osobiście jestem za robioną ręcznie i niewypalaną cegłą z dodatkiem słomy bo wydaje mi się to trwalszym i bardziej estetycznym rozwiązaniem.
maciej
Posty: 309
Rejestracja: 12 lut 2009, 15:15

Re: Ciesielstwo

Post autor: maciej »

To będzie jednak wypełnienie kosznicowe czyli wiklina (jak na przykładowym rysunku powyżej) oblepiana gliną. Podobnie było w skansenie w Torgelow. Glina może być mieszana ze słomą. Fragmenty takiej polepy znaleźliśmy na wykopaliskach w Wielowsi (w domniemanej komandorii templariuszy) w tzw. wieży rycerskiej. Powietrze w źdźbłach słomy pełniło dodatkową rolę izolacji cieplnej.

Pozdrawiam
Maciej
maciej
Posty: 309
Rejestracja: 12 lut 2009, 15:15

Re: Ciesielstwo

Post autor: maciej »

Dziś kontynuacja pracy. Z Niemiec przyjeżdżają Brat Joerg, Renatus i być może inni. Na miejscu już oczekują Brat Mirek i Maciej. Po południu dołączy Robert z Czarciej Podkowy. Nie mógł dojechać Regis. Jeśli ktoś będzie w pobliżu dziś-jutro - zapraszamy.
Relacja z prac oczywiście po ich zakończeniu. Mamy nadzieję na postawienie konstrukcji warsztatu garncarza i fundamentu pieca kuźni.

Pozdrawiam
Maciej
maciej
Posty: 309
Rejestracja: 12 lut 2009, 15:15

Re: Ciesielstwo

Post autor: maciej »

Ostatecznie: pięć osób z Niemiec (Joerg, Renatus, Gerolf, Elisabeth i Jilseponie) oraz Agnieszka i Robert Gumbisowie, Brat Mirek, Brat Maciej.
Efekt: ustawione roboczo ściany warsztatu. Po noclegu w zagrodzie jeździeckiej "Czarcia Podkowa" - kontynuacja pracy (z przerwą na wybory :-)).
Dzisiejszy efekt pracy dostępny w naszej galerii:
http://www.templariusze.org/galeria_pod ... 185#podkat

Pozdrawiam
Maciej
maciej
Posty: 309
Rejestracja: 12 lut 2009, 15:15

Re: Ciesielstwo

Post autor: maciej »

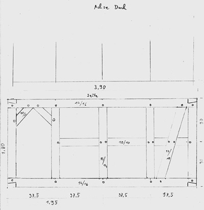
Nie dokończyliśmy jeszcze zabudowywania podwaliny kamieniami i gliną. Jilseponie wyrabiająca glinę nogami wywołała wspomnienia z pracy Regisa (podczas budowy zniszczonego przez lokalnego terrorystę poprzedniego pieca garncarskiego), który również stosował tę znaną od starożytności metodę. Przygotowaliśmy natomiast dwie z pięciu par krokwi. Jedną na próbę nawet ustawiliśmy co uświadomiło nam jak będzie wyglądał warsztat po skończeniu. Poza tym zostały jeszcze dwa zastrzały z tyłu i wzmocnienia w przedniej części, później rygle (patrz plan). Dopiero potem ustawimy krokwie. Następnie wypełnimy ściany koszenicami. W tylnej części dachu przewidziana została część otwarta nad kominem, ewentualnie z wyprowadzonym ponad dach kominem pieca garncarskiego. Wcześniej musimy podnieść trochę podłogę - o czym zapomniałem. Dach to na ten czas pomysł z wykorzystaniem dranic.

To na razie tyle.

Pozdrawiam.
Maciej
maciej
Posty: 309
Rejestracja: 12 lut 2009, 15:15

Re: Ciesielstwo

Post autor: maciej »

2, 3 i 4 lipca kontynuujemy pracę. Uczestniczy (w porywach) do siedmiu osób. Przy ponad trzydziestostopniowym upale i obecności Brata Joerga tylko w sobotę - rezultaty nie są już tak imponujące jak poprzednio: rygle na jednaj ze ścian, dokończenie (bez mała) kamiennego fundamentu pod podwaliną, następna para krokwi, pierwszy kwadrat konstrukcji z wypełnieniem koszenicowym. Nowe fotografie - w galerii:
http://www.templariusze.org/galeria_pod ... 185#podkat

Pozdrawiam
Maciej
ODPOWIEDZ